服务热线
029-88633439
手机
18092189061
PRODUCT CENTERS


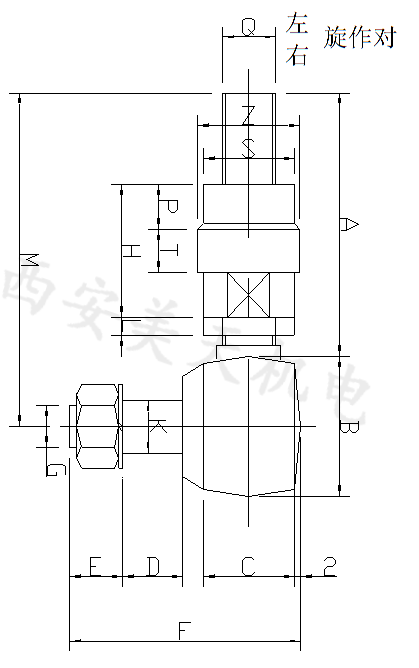
QJ-25 万向节关节轴承 执行器铰链尺寸 QJ-60球型铰链 QJ-400铰链 QJ-160执行器球型铰链
产品结构特点:
1. 该产品由于选用了球型轴承结构,能灵活的承受来自各异面的压力。
2. 该产品与执行器的连接有锥体及直柄两种,扩大了仪表使用面。
3. 球型连接铰链采用左旋、右旋螺纹连接方便可靠、可调范围大。
4. 本连接铰链采用全封闭结构,保养方便。
安装:
1. 安装前应准确测量连接位置的距离(此时调节螺母应在中间位置),以确定连接管的长度。
2. 将连接管与左旋、右旋螺母焊接、此时应可做缩短或放长连接杆的适量调整,再用锁紧螺母锁紧。
3. 先将铰链装在执行器出轴杠杆与调节机构控制连杆上,如选用锥体连接应先用专用铰刀将出轴杠杆与控制连杆铰成1:10孔,再行连接。
4. 安装完毕,应用手动进行连动试运转,如转动灵活方可使用。
